Lpg Depolama Tankları
Açıklama
(TR) Endüstriyel dökmegaz ya da lpg otogaz depolama için imal edilir. EN/2252, En/2493, ADR TPED standartlarına uygun olarak imalatını gerçekleştirdiğimiz tanklarımızı müşterilerimizin hizmetine sunmaktayız.
Ürünün kullanılacağı bölgeye uygun opsiyonel dizayn yapılabilir.
(EN) Industrial bulk gas or LPG autogas are manufactured for storage. EN / 2252, EN / 2493, ADR We supply the tanks that we manufacture in accordance with the TPED standards to our customers.
Optional design suitable for the region where the product is to be used.
Tank Özellikleri
Camber Levha Kalınlığı: 8mm
Tank Levha Kalınlığı: 8mm
PH Değeri: 355
Boyut: 5350mm
Çap: 1600mm
Yüksek: 1800mm
Boya: 120 Mikron Polyester Tabanlı Boya
Tank Specifications
Camber Sheet Thickness: 8mm
Tank Sheet Thickness: 8mm
pH Value: 355
Size: 5350mm
Diameter: 1600mm
High: 1800mm
Paint: 120 Micron Polyester-Based Paint
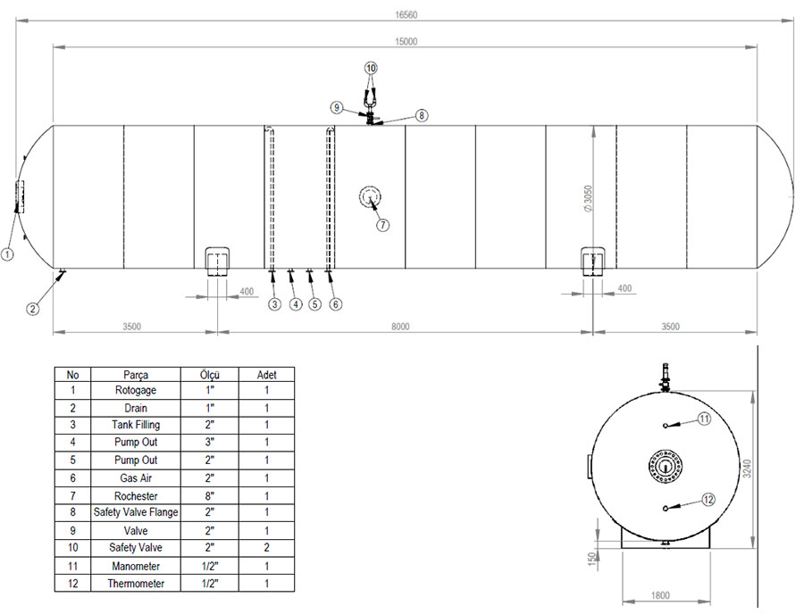
150m3 Stoklama Tank Çizimi ve Parçaları
150m3 Stocking Tank Drawings and Parts

180m3 Stoklama Tank Çizimi ve Parçaları
180m3 Stocking Tank Drawings and Parts

210m3 Stoklama Tank Çizimi ve Parçaları
210m3 Stocking Tank Drawings and Parts


























